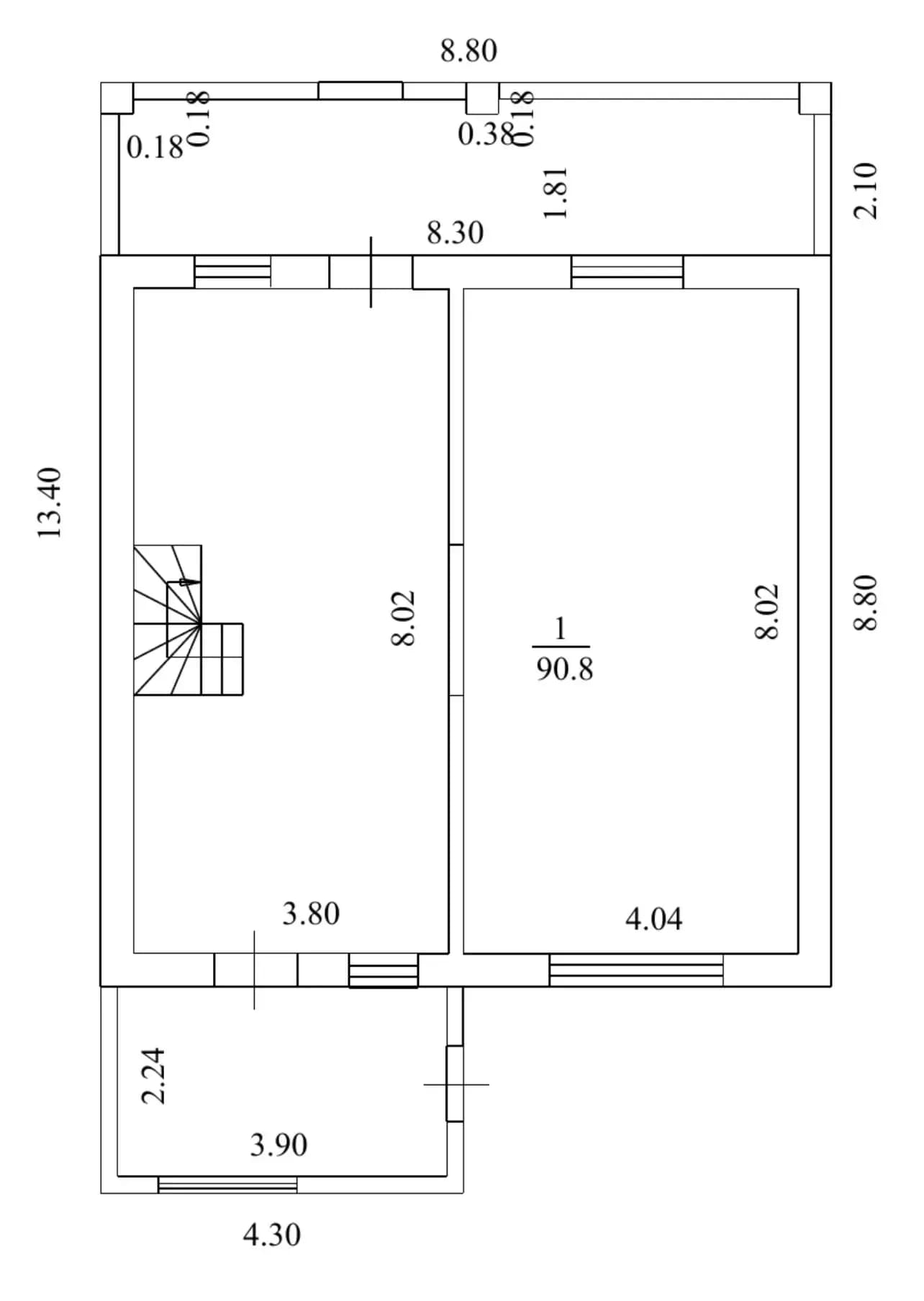
Дом 120 кв.м. на 10 сотках




О доме
Вид объекта:Дом вторичка
Категория земли:ИЖС
Отделка:Чистовая
Отопление:Электричество
Асфальт до дома:Да
Закрытый ЖК:Нет
Количество этажей:2
Количество спален:4
Количество сан. узлов:2
Раздельная кухня и гостиная:Нет
Дом С ЧПВ:Нет
Материал облицовки:Иное
Материал стен:Керамзит
Утеплитель стен:Пенопласт
Статус объекта:Дом построенный
Статус продажи объекта:Свободный
