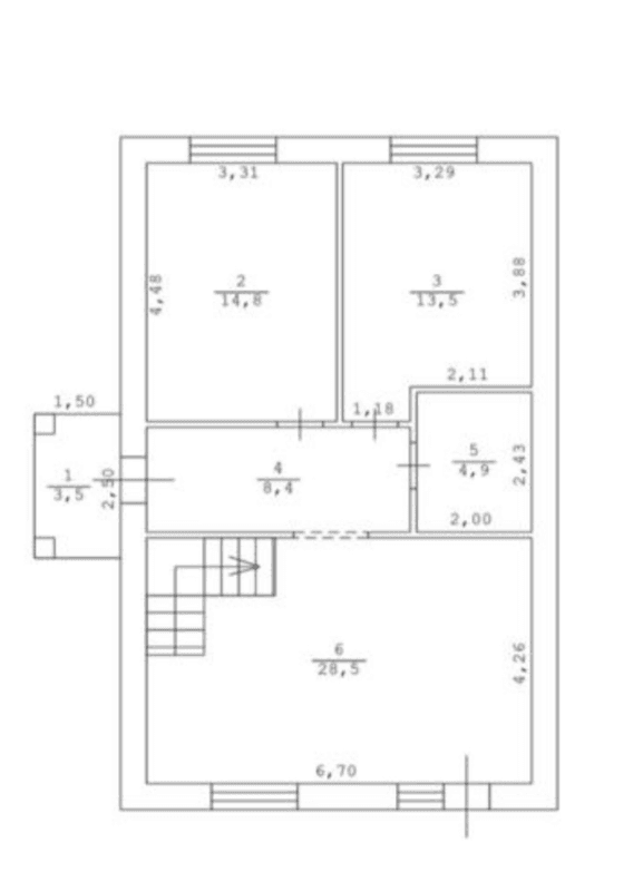
Дом 130 кв.м. на 6 сотках



О доме
Вид объекта:Дом от застройщика
Категория земли:ИЖС
Отделка:Черновая
Отопление:Электричество
Асфальт до дома:Нет
Закрытый ЖК:Нет
Количество этажей:1
Количество спален:3
Количество сан. узлов:2
Раздельная кухня и гостиная:Нет
Дом С ЧПВ:Да
Материал облицовки:Кирпич
Материал стен:Керамзит
Утеплитель стен:Пенопласт
Статус объекта:Дом построенный
Статус продажи объекта:Свободный
