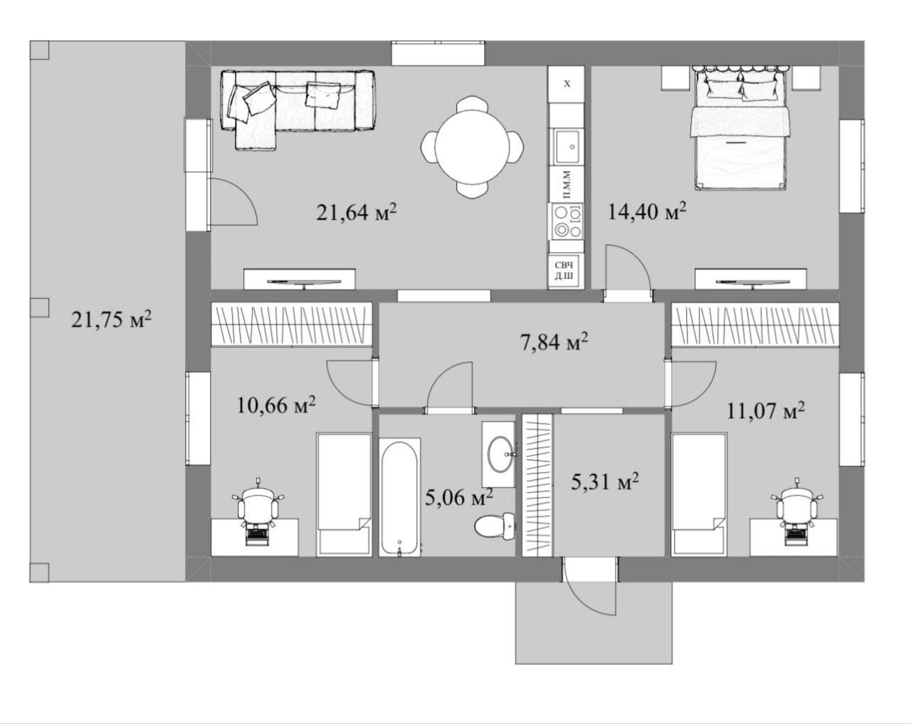
Дом 75 кв.м. на 10 сотках






О доме
Вид объекта:Дом от застройщика
Категория земли:ИЖС
Отделка:Предчистовая
Отопление:Электричество
Асфальт до дома:Нет
Закрытый ЖК:Нет
Количество этажей:1
Количество спален:3
Количество сан. узлов:1
Раздельная кухня и гостиная:Нет
Дом С ЧПВ:Да
Материал облицовки:Кирпич
Материал стен:Керамзит
Утеплитель стен:МинВата
Статус объекта:Дом строится
Статус продажи объекта:Свободный
