Дом 137 кв.м. на 6.37 сотках




О доме
Вид объекта:Дом от застройщика
Категория земли:ИЖС
Отделка:Черновая
Отопление:Газ
Асфальт до дома:Да
Закрытый ЖК:Нет
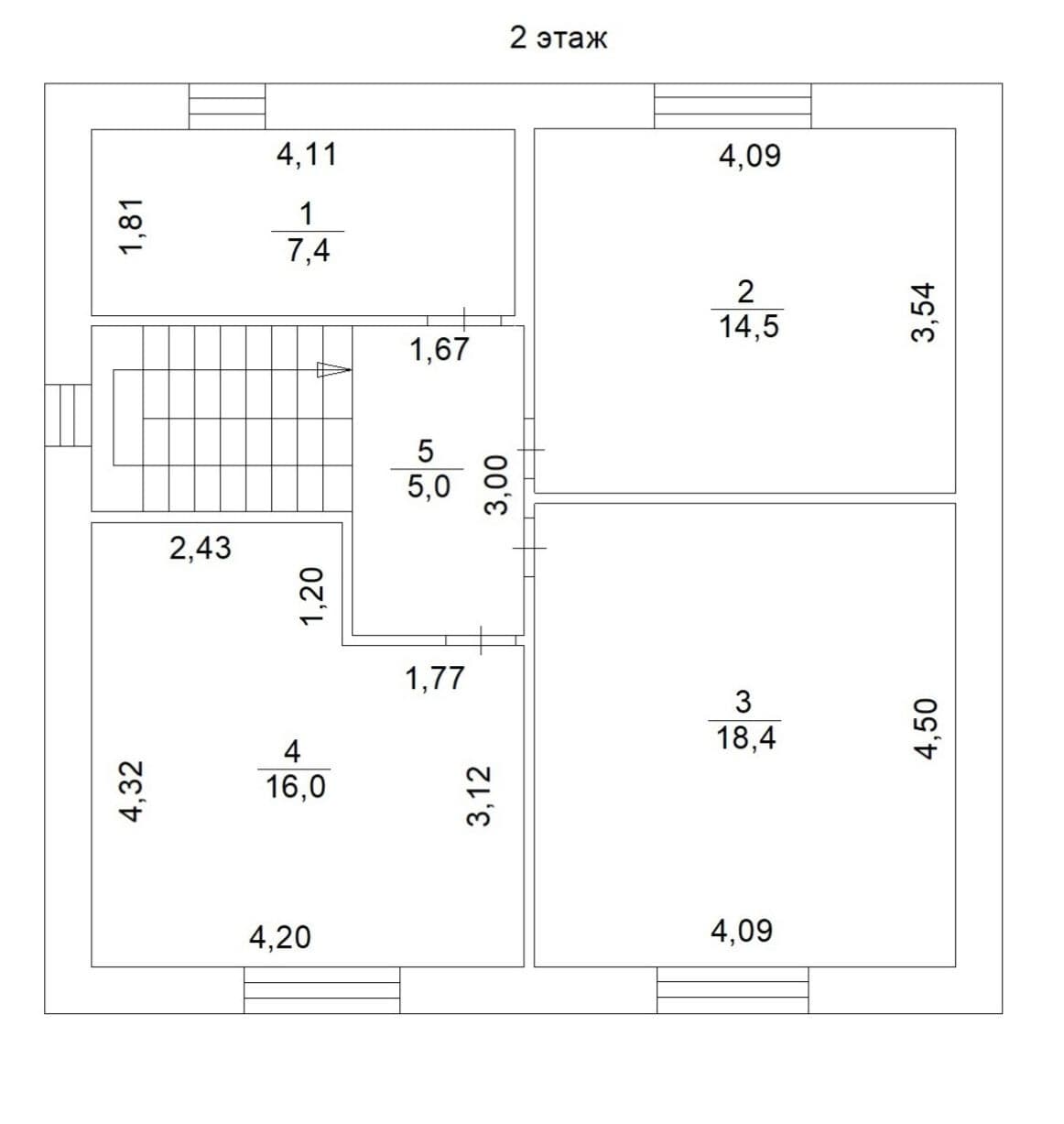
Количество этажей:2
Количество спален:4
Количество сан. узлов:2
Раздельная кухня и гостиная:Нет
Дом С ЧПВ:Нет
Материал облицовки:Кирпич
Материал стен:Керамзит
Утеплитель стен:Пенопласт
Статус объекта:Дом строится
Статус продажи объекта:Свободный
